• 首页
  • 案例详情
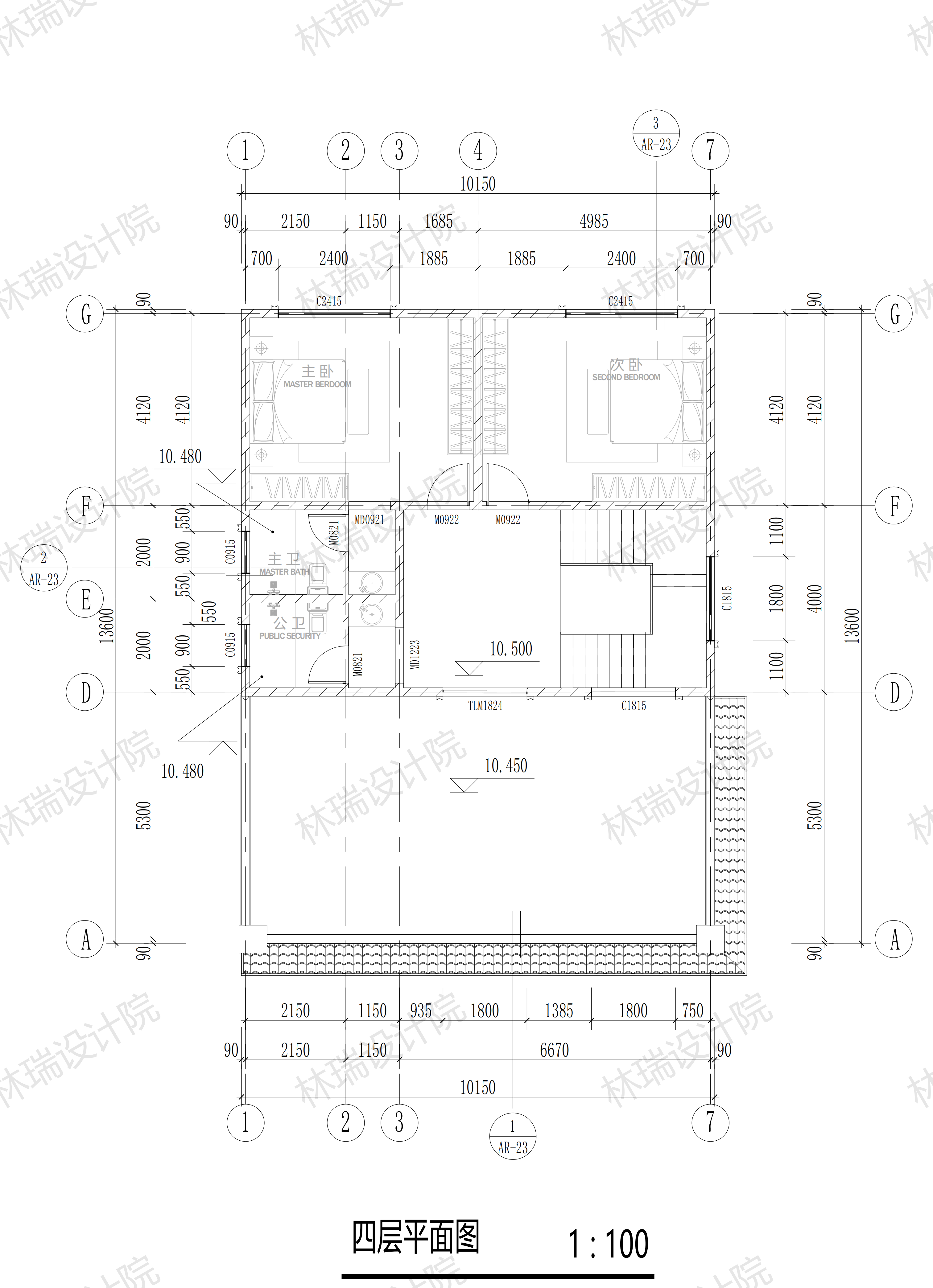
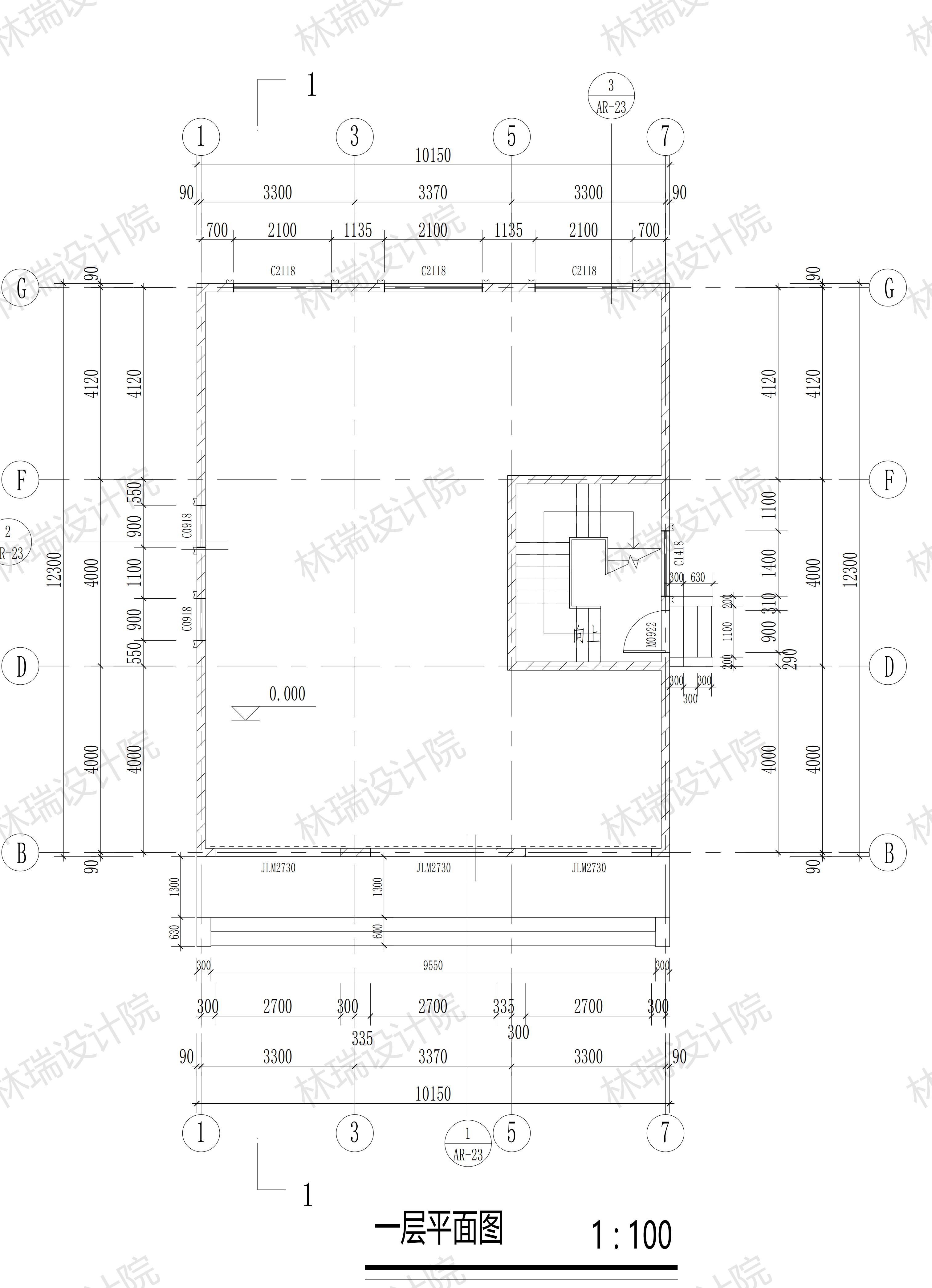
  • MJ58679
  • 简欧与欧式
  • 四层
  • 120-130 ㎡
  • 10米左右
  • 12米左右
  • 480.60 ㎡
  • 砖混结构
  • 有露台,无挑空,坡屋顶,三开间,7-8卧室
  • 平面布置图,外观效果图,建筑施工图,结构施工图,水电施工图

Copyright © 2021 zijianfang100.com All rights reserved 江西领业建筑科技有限公司 版权所有 赣ICP备20009592号-2